















|
 |
 |

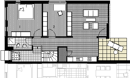
Wohnung 1
3 Zimmer, Erdgeschoss sep. Eingang
Wohnfläche ca. 82,3 qm zzgl. Keller


| |
|
Eingang |
ca. 5,0 qm |
| |
Flur |
ca. 6,4 qm |
 |
|
Bad |
ca. 4,3 qm |
| |
Zimmer 1 |
ca. 17,5 qm |
| |
Zimmer 2 |
ca. 12,1 qm |
| |
Wohnzimmer |
ca. 20,1 qm |
| |
Küche |
ca. 11,5 qm |
| |
Abstell |
ca. 7,3 qm |
 |
 |
 |
| |
Terrasse |
ca. 7,3 qm |
| |
(überdacht
zu 50% Wfl) |
|
| |
|
|
| |
Keller |
ca. 29,4 qm |
| |
|
|
| |
|
Änderungen vorbehalten |

  
|
 |