















|
 |
 |

Reihenhaus 3
Wohnfläche ca 130,8 qm zzgl. Kellerräume


| Erdgeschoss |
|
Flur |
ca. 5,7 qm |
| |
WC |
ca. 2,1 qm |
 |
|
Abstell |
ca. 1,5 qm |
| |
Wohnzimmer |
ca. 45,3 qm |
| |
Küche |
ca. 10,7 qm |
 |
 |
 |
| |
Terrasse |
ca. 14,7 qm |
| |
(überdacht
zu 50% Wfl) |
ca. 3,1 qm |

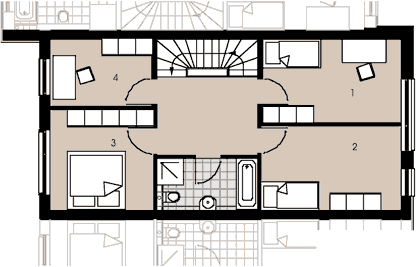
| Obergeschoss |
|
Flur |
ca. 9,6 qm |
| |
Zimmer 1 |
ca. 13,8 qm |
 |
|
Zimmer 2 |
ca. 14,0 qm |
| |
Bad |
ca. 5,9 qm |
| |
Zimmer 3 |
ca. 12,3 qm |
| |
Zimmer 4 |
ca. 8,3 qm |
 |
 |
 |

| Keller |
|
Vorraum |
ca. 4,3 qm |
| |
Raum 1 |
ca. 6,0 qm |
 |
|
Raum 2 |
ca. 15,7 qm |
| |
Raum 3 |
ca. 19,5 qm |
| |
Raum 4 |
ca. 12,2 qm |
 |
 |
 |
 |
Änderungen vorbehalten |

  
|
 |